桂魄盈窗,清辉染团圆!同心筑梦,共庆国庆!尊敬的电容处理回收设备,线路板回收设备,铝塑回收设备,报废锂电池回收设备客户您好,欢迎您进入茂鑫机械的网站!十一黄金周将至,大家出行意愿高涨,有人想去海滨城市看碧海蓝天,有人则打算前往山区体验清新的自然空气。1927年10月15日,唐澍、谢子长等领导陕北清涧起义。在敌人重兵围攻下,1928年初,起义失败。继往开来续写华章,茂鑫提醒各位电池电器回收再利用业界客户朋友:胸怀红色梦想,脚踏品质征程!感谢您关注河南茂鑫机械设备有限公司网站http://m.cnmxsb.com,欢迎拨打电容处理回收设备,线路板回收设备,铝塑回收设备,报废锂电池回收设备系列产品技术咨询电话:18237188568!月华倾洒千家窗,匠心筑梦正当时。茂鑫机械祝电容处理回收设备,线路板回收设备,铝塑回收设备,报废锂电池回收设备朋友事业如满月高悬,创新似玉兔奔跃,财智同秋实丰盈!

电路板回收设备

    以创新为魂,以革新为路茂鑫自成立以来一直致力于电池电器回收再利用领域研发探索和经验积累,已经累计为众多客户提供过重创新的【电路板回收设备】产品!

一、电(线)路板回收设备简介:
   废旧电路板破碎回收供应线主要用于对废旧电路板、覆铜板、线路板及边角料等物料中的金属与非金属的分离。该机的开发成功不但提高了回收铜的质量,又防止二次污染。本供应线对废电路板再生定制采取二级粉碎,使其成为金属和树脂纤维粉末混合物;然后通过风力和静电分选将金属与树脂分离。为防止定制过程中的粉尘污染,在气流分选工序后加脉冲除尘装置,有效地解决了粉尘污染问题。


二、电(线)路板回收设备产品介绍;                                                                                                        

废旧板破碎回收供应线主要用于对废旧电路板、覆铜板、线路板及边角料等物料中的金属与非金属的分离。
1、 综合性能好,对电脑板回收,计算机板回收,电视机板回收及其它线路控制板回收有效果。对含电容器件的各种线路板回收同样有兼融性。                                                                   
2、本供应线是A型产品的升级换代产品,在A型基础上耗电量减少,无噪音,人工少自动化程序高,效率提高,同时占地面积小,是废旧电路板回收利用到目前理想的供应线。
3、全套设备采用新式除尘器,三合一除尘(旋风除尘+静电除尘+静化除尘)对空气,无废气排放。
4、设备外观整洁,无一除尘袋,取代了传统除尘器灰尘、异味解决不了的难题。
5、为防止定制过程中的粉尘污染,在气流分选工序后加脉冲除尘装置,有效地解决了粉尘污染问题。

                                             


三、电(线)路板回收设备特点:
1.采用了电路板粉碎机进行机械粉碎、高压静电分离新工艺。拆解、粉碎、解离后,进行金属物和非金属物的分选,纯度高。整机电路板回收设备分离纯度的达到99.5%以上。
2.关键技术是将各种废旧电路板的专用粉碎解离设备有机的结合起来,在供应过程中达到较大的节能效果,且实现了很高的金属分离率。

3.电路板回收设备处理每吨废旧电路板单位能耗仅为国内同类产品的3/5左右;单套设备每小时高处理量1吨。
4.电路板回收设备售价仅为国内外同类设备的1/5-1/3,且铜的回收率比同类供应公司高出3%--5%。
5.综合性能好,对电脑板,计算机板,电视机板及其它线路控制板有效果。对含电容器件的各种线路板回收同样有兼融性。
6.电路板回收设备供应线是风选型产品的升级换代产品,比风选型耗电量减少,且无噪音,人工少自动化程序高,效率提高,同时占地面积小,是废旧电路板回收利用、目前理想的供应线。
7.用工少,无噪音,电路板回收设备摆放具有灵活性。


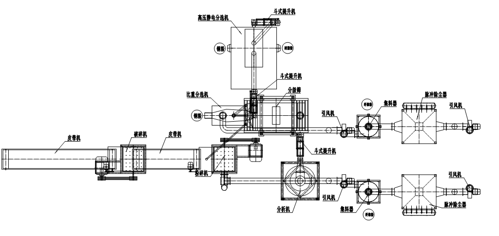
四、线路板摆放工艺平面图:

      

五、电路板破碎回收工艺流程

  六、工艺流程图解

   1 .撕碎机:把光板进行撕碎,撕碎至2-3公分。

  2. 电路板粉碎机:把破碎后的电路板进行粉碎,粉碎至20目左右。

  3 .分析机:把粉碎后的料进行风选,把树脂、铜和粉尘、纤维进行分离,粉尘和纤维被引风机吸入集料器,树脂和铜进入分级筛。

  4 .集料器:把粉尘与纤维进行收集,收集后的纤维进行排放。

  5. 脉冲净化器:把破碎过程中所产生的粉尘,超细纤维进行收集。

  6 .分级筛:把树脂和铜进行筛选,没有分离开的树脂和铜返回主机再粉碎,分离开的树脂和铜进入比重分选机进行分选。

  7 .比重分选:把树脂粉和铜进行比重分选,由于铜的重量大于树脂的重量,铜会分选到一边,树脂分选到另一边。这样就达到金属与非金属分离。这是目前国内先进的一种技术,能把金属分选效果达到99%以上。

  8 .高压静电分选:把经过比重分选机的尾料再进行高压静电分选,使尾料中所含的小粒铜粉和树脂分离(高压静电分选原理为:把输入的电源经变压器调整到10万伏的高压,形成高压磁场,对导电的金属有吸附的效果,这样就达到金属与非金属分离了)


 六、电(线)路板回收设备经济效益分析:
   供应线总功率98Kw,处理量700Kg/h,电路板含铜量约为18%(废旧电路板类不同,则含铜量不同,一般在13%-35%),操作人员5人。
   (1) 产值估计(一年按300天计算,一天按8小时计)
   (a) 年产铜量约:300(天)×8(小时)×700(Kg)×18%(含铜量)=302.4(吨)铜按50000元/吨计,则年产铜值为:302.4×5 =1512(万元)
   (b) 年产玻璃纤维粉约: 300(天)×8(小时)×700(Kg)×82%(含量)=1377.6(吨)玻璃纤维按1000元/吨计,则年产非金属材料值为:1377.6×0.1(万元)=137.76(万元)
   (c) 年产值总计为:1512+137.76=1649.76(万元)
   (2) 成本估计
   (a) 年耗电量(电费按0.8元/度计):100(Kw)×300(天)×8(小时)×0.8(元/度)=19.2(万元)
   (b) 人工费2000(元/人、月)×12(月)×5(人)=12(万元)
   (c) 设备折旧费(按10%折旧),约:260000×10%=2.6(万元)
   (d) 维修费约:1万元
   (e) 废电路板收购费: 300(天)×8(小时)×700(Kg/h)×6(元/Kg)=1008(万元)
   (f)房租费:2000(元/月)×12(月)=2.4万
   (f) 总计:19.2+12+2.6+1+1008+2.4=1034.2(万元)        
       毛利:  1649.76-1034.2=615.56(万元)


七、电(线)路板回收设备技术参数:

            

序号  

设备名称

型号

功率(kw)

件数(套)

 

1

皮带输送机

500

1.5

2

 

2

撕碎机

800

22*2

1

 

3

粉碎机

1000

55

1

 

4

分析机

1000

2.2

1

 

5

集料器

800

 

2

 

6

脉冲除尘器

MC-64

 

1

 

7

脉冲除尘器

MC-48

 

1

 

8

引风机

F11

11

1

 

9

引风机

F75

7.5

1

 

10

旋振筛

1600

1.1

1

 

11

提升机

800

1.1

3

 

12

比重分选机

1200

1.5+0.75

1

 

13

高压静电分选机

1200

1.1+2.2

1

 

14

关风器

160

0.75

2

 

15

连接管子

219、273

 

1套

弯头、直管

16

调风阀

200

 

2

 

17

Pc管

110

 

1套

接头、弯头

18

连接软管

180、120

 

4根

 

19

所有设备支架

 

 

全套

 

20

配电柜

 

 

1

 

  河南茂鑫机械设备有限公司供应废旧电子垃圾回收粉碎分离设备,形成了电子废弃物环保处理设备供应、废电器电子产品回收拆解处置。在结合当前环保需求的同时推出系列环保型机械产品:环保型废旧锂电池破碎回收、手机锂电池破碎分离设备、环保型废旧电路板、线路板一条龙回收--粉碎--分离--再利用供应线、环保型废旧电缆电线回收分离设备、环保型废旧铝塑回收设备。我们为投资客户提供专业技术,提供参观,试机,现场探讨等,因为专业专注、诚信、可靠、服务完善。                                  


 

     成就品牌并不是茂鑫人的追求,如何让茂鑫【电路板回收设备】,创造更大客户价值,为客户提供重技术的产品,才是茂鑫人致力追求的方向!

上一条: 电路板拆解设备